![]()
- Location: Blaxland Comman, Sydney Olympic Park, Homebush
- Contract Value: $7.0M
- Contract Timeframe: February 2006 – February 2007
- Client Name: Sydney Olympic Park Authority
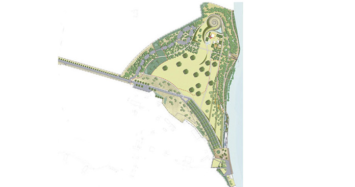
Project Description: The activation of the riverfront at Blaxland Common required a Design and Construct solution that provided infrastructure to cater for visitors while providing facilities for the enjoyment of the river park. This solution had to complement the heritage of the Newington House and Armory. Terraced landscaped banks, retaining structures, architectural buildings, hard landscaped areas, play equipment, picnic and barbeque facilities and a car park are components of the project. The parklands are built on a contaminated site.
Architect: Lacoste Stevenson.
Landscape Architect: Hargraves and Associates.





